Skip to content
2 1 0 1
OBIČE
2 1 . 0 2
BÜROERÖFFNUNG UND VERNISSAGE! ***
2 3 0 7
LISZTGASSE
0 0 1 0
UMGEZOGEN: VON WIEN IN DIE WIENER GASSE!
2 3 0 6
SIMON OBERHOFER FOTOGRAFIERT WILHELMINE
1 9 0 1
KAISERALLEE
0 0 4 0
SEHGEWOHNHEITEN: VORTRAG AN DER TU-GRAZ
2 3 0 1
GLEINSTÄTTEN
2 3 0 7
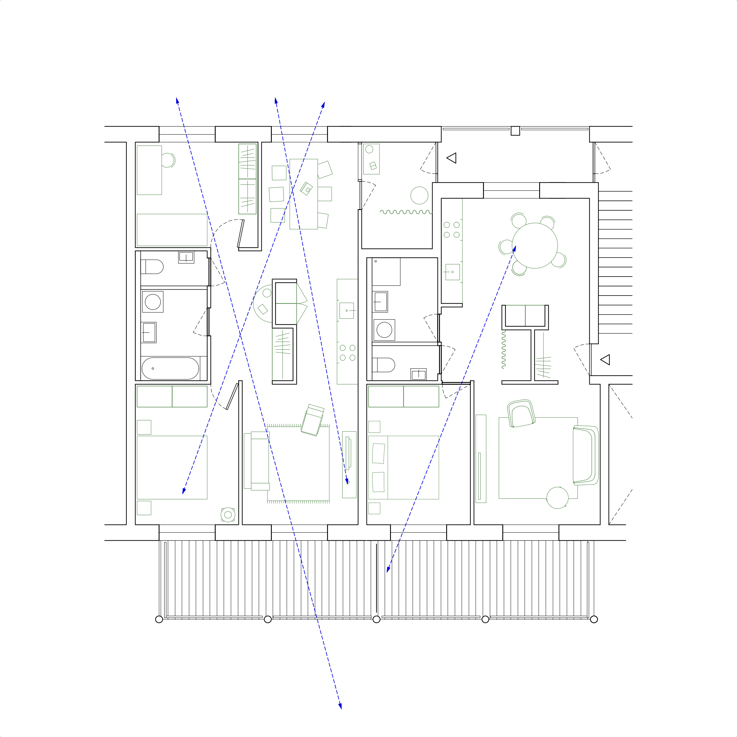
CHARAKTERVOLLES NEBENEINANDER.
1 9 0 1
KAISERALLEE
ERSTLING
2 3 0 1
GLEINSTÄTTEN
2 2 0 1
OBIČE

Klemen Breitfuss Architekt ETH

Ein Haus gehört einem nie ganz allein. 
Man erfreut sich daran ein Leben lang, 
aber eigentlich bewahrt man es schon für die nächste Generation.